Historic Antique, Other, Victorian
601 N Front Street
Dardanelle , AR 72834
MLS#: 1312637
$210,000

Property
Beds
3
Full Baths
2
1/2 Baths
None
Year Built
1880
Sq.Footage
2,568
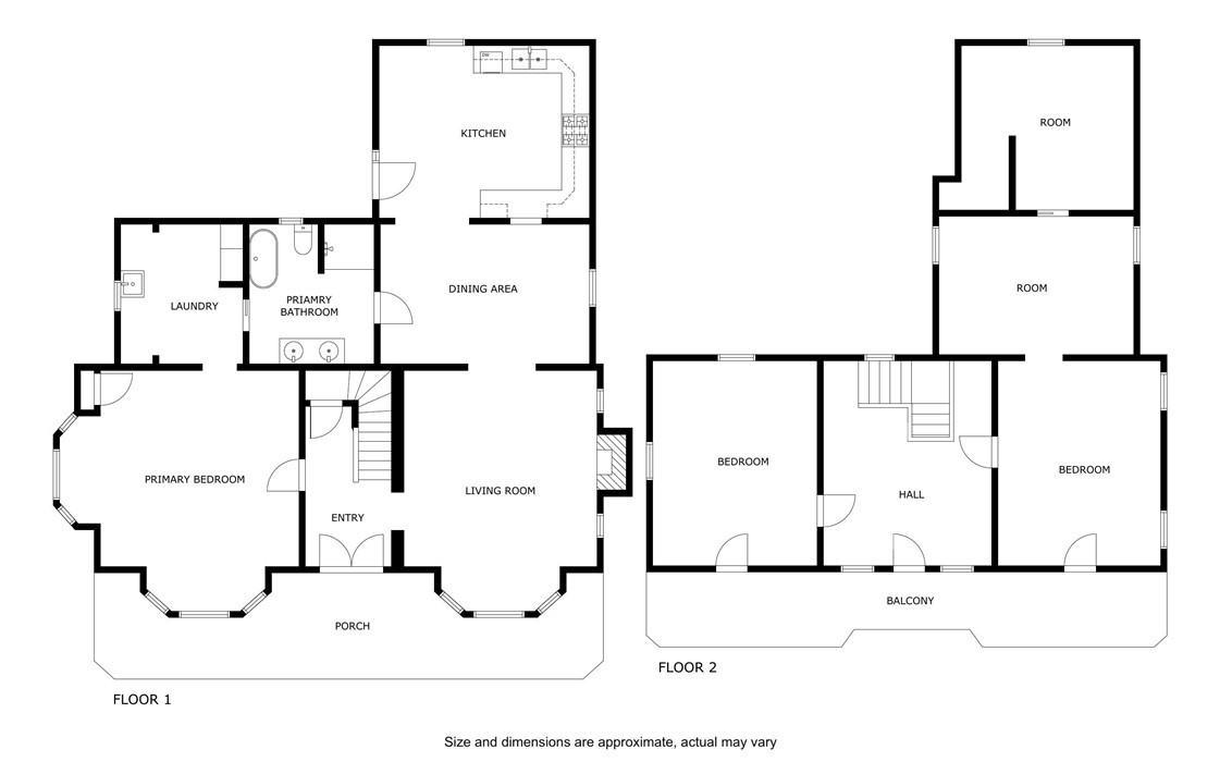
This Victorian Gothic treasure is proudly listed on the National Register of Historic Places. The intricate Carpenter Gothic trim, weatherboard siding, and cross-gabled roof create a striking first impression. The large covered front porch welcomes you to slow down and take in the charm of historic Dardanelle. Inside, the original hardwood floors have been preserved and the kitchen shines with custom cabinetry, stainless steel appliances, and butcher block countertops. The bathroom has been thoughtfully updated to include heated tile floors, a large walk-in shower, and the original clawfoot tub. Upstairs, charming doors open onto small balconies where you can take in stunning views of the Arkansas River. Just beyond the front steps, Dardanelle has a brand-new sidewalk and trail system that stretches down Front Street and winds its way to Merritt Park. This beautifully designed path offers a scenic connection through the heart of town and along the riverfront adding even more to the home's unbeatable location.
Features & Amenities
Interior
-
Total Bedrooms
3
-
Bathrooms
2
-
Basement YN
NO
-
Cooling YN
YES
-
Cooling
Central Air, Electric
-
Fireplace YN
YES
-
Heating YN
YES
-
Heating
Central, Wood Stove
-
Pet friendly
N/A
Exterior
-
Garage
No
-
Construction Materials
Wood Siding
-
Other Exterior Features
Balcony
-
Parking
Driveway, Unpaved, Paved
-
Patio and Porch Features
Covered, Porch, Screened
-
Pool
No
-
View
River
Area & Lot
-
Lot Features
Corner Lot, Level
-
Lot Size(acres)
0.25
-
Property Type
Residential
-
Property Sub Type
Single Family Residence
-
Architectural Style
Historic Antique, Other, Victorian
Price
-
Sales Price
$210,000
-
Tax Amount
253.0
-
Zoning
Residential
-
Sq. Footage
2, 568
-
Price/SqFt
$81
HOA
-
Association
No
School District
-
Elementary School
Dardanelle
-
Middle School
N/A
-
High School
N/A
Property Features
-
Stories
2
-
Association Amenities
Trail(s)
-
Tax Lot
1
-
Water Source
Public
Schedule a Showing
Showing scheduled successfully.
Mortgage calculator
Estimate your monthly mortgage payment, including the principal and interest, property taxes, and HOA. Adjust the values to generate a more accurate rate.
Your payment
Principal and Interest:
$
Property taxes:
$
HOA fees:
$
Total loan payment:
$
Total interest amount:
$
Location
County
Yell
Elementary School
Dardanelle
Middle School
High School
Listing Courtesy of TABATHA DAVIS TEAM , LIVE. LOVE. ARKANSAS
RealHub Information is provided exclusively for consumers' personal, non-commercial use, and it may not be used for any purpose other than to identify prospective properties consumers may be interested in purchasing. All information deemed reliable but not guaranteed and should be independently verified. All properties are subject to prior sale, change or withdrawal. RealHub website owner shall not be responsible for any typographical errors, misinformation, misprints and shall be held totally harmless.

Branch Broker
DebbieNeal
Call Debbie today to schedule a private showing.

* Listings on this website come from the FMLS IDX Compilation and may be held by brokerage firms other than the owner of this website. The listing brokerage is identified in any listing details. Information is deemed reliable but is not guaranteed. If you believe any FMLS listing contains material that infringes your copyrighted work please click here to review our DMCA policy and learn how to submit a takedown request.© 2024 FMLS.
