Property
Beds
None
Full Baths
None
1/2 Baths
4
Year Built
1979
Sq.Footage
11,560
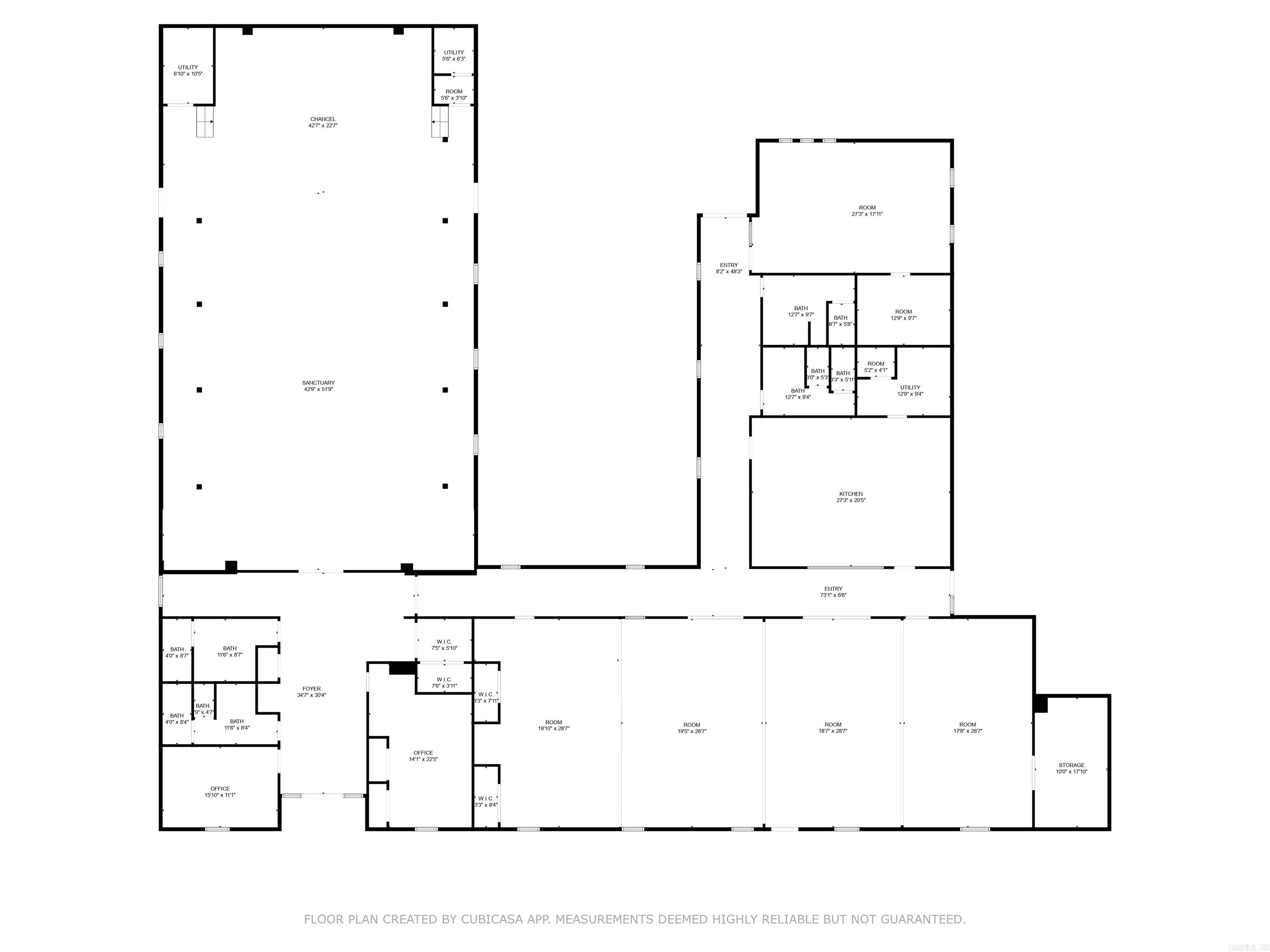
Previous church facility. Any use allowed by seller, check with city planning commission. Almost 12k square ft facility on 2 acres. Approximate 4500 SF sanctuary with lights, fans, pews, organ and sound system. Approximate 715 SF full kitchen with sinks, ventahood, stove, appliances. Appointed offices, classrooms, storage closets, and fellowship hall. 4 restrooms. Asphalt parking. Property being sold as-is present condition. All showings must be accompanied by a Realtor. NO Disclosures provided by seller. Existing personal property will remain but will not be considered part of the sale. Any items left in the building will be considered as-is and abandoned and will have zero value. Seller makes no guarantees, warranties, or representations of any kind regarding the existence, condition, or usability of said personal property which will remain in building at closing. Title transferred by Special Warranty Deed/Trustee Deed.
Features & Amenities
Interior
-
Other Interior Features
Pantry, Vaulted Ceiling(s), Ceiling Fan(s)
-
Total Bedrooms
N/A
-
Bathrooms
N/A
-
1/2 Bathrooms
4
-
Cooling YN
YES
-
Cooling
Electric, Central Air
-
Heating YN
YES
-
Heating
Natural Gas, Central
-
Pet friendly
N/A
Exterior
-
Garage
No
-
Construction Materials
Brick
-
Pool
No
Area & Lot
-
Lot Features
Level
-
Lot Size(acres)
2.06
-
Property Type
Residential
-
Property Sub Type
Single Family Residence
-
Architectural Style
Traditional
Price
-
Sales Price
$675,000
-
Sq. Footage
11, 560
-
Price/SqFt
$58
HOA
-
Association
No
School District
-
Elementary School
N/A
-
Middle School
N/A
-
High School
N/A
Property Features
-
Stories
1
-
Accessibility Features
Accessible Entrance, Accessible Electrical and Environmental Controls
-
Sewer
Public Sewer
-
Water Source
Public
Schedule a Showing
Showing scheduled successfully.
Mortgage calculator
Estimate your monthly mortgage payment, including the principal and interest, property taxes, and HOA. Adjust the values to generate a more accurate rate.
Your payment
Principal and Interest:
$
Property taxes:
$
HOA fees:
$
Total loan payment:
$
Total interest amount:
$
Location
County
Izard
Elementary School
Middle School
High School
Listing Courtesy of Camme Fell , ArkBest Realty, Inc.
RealHub Information is provided exclusively for consumers' personal, non-commercial use, and it may not be used for any purpose other than to identify prospective properties consumers may be interested in purchasing. All information deemed reliable but not guaranteed and should be independently verified. All properties are subject to prior sale, change or withdrawal. RealHub website owner shall not be responsible for any typographical errors, misinformation, misprints and shall be held totally harmless.

Branch Broker
DebbieNeal
Call Debbie today to schedule a private showing.

* Listings on this website come from the FMLS IDX Compilation and may be held by brokerage firms other than the owner of this website. The listing brokerage is identified in any listing details. Information is deemed reliable but is not guaranteed. If you believe any FMLS listing contains material that infringes your copyrighted work please click here to review our DMCA policy and learn how to submit a takedown request.© 2024 FMLS.
