Property
Beds
1
Full Baths
1
1/2 Baths
None
Year Built
None
Sq.Footage
577
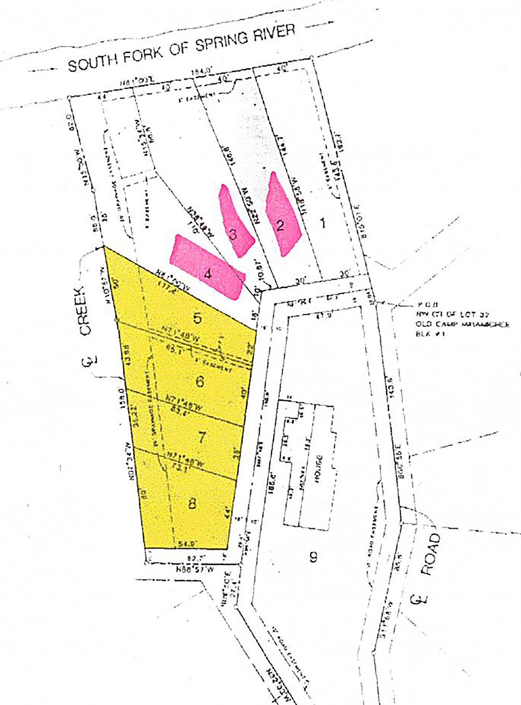
Old Camp Miramichee Cabin and 4 Creek Frontage Lots - This 577 square foot cabin is an original from girls Camp Miramichee days. The cabin has been renovated Inside, and outside with a beautiful new deck. Features include living/dining room with wood burning stove, nice kitchen, bedroom, full bath and original Flagstone flooring. Cabin is being sold furnished and is a good seasonal rental. Across the road are 4 creek frontage lots include with the cabin for an additional 3 m/l acres of land. The cabin and the 4 lots sit next to a creek that flows into the South Fork of the Spring River.
Features & Amenities
Interior
-
Total Bedrooms
1
-
Bathrooms
1
-
Cooling YN
YES
-
Cooling
Window Unit(s), Ceiling Fan(s)
-
Heating YN
YES
-
Heating
Wood Stove, None
-
Pet friendly
N/A
Exterior
-
Garage
No
-
Construction Materials
Frame
-
Patio and Porch Features
Deck
-
Pool
No
Area & Lot
-
Lot Features
Cleared, Sloped
-
Lot Size(acres)
1.0
-
Property Type
Residential
-
Architectural Style
Other (see remarks)
Price
-
Sales Price
$199,500
-
Tax Amount
227.99
-
Sq. Footage
577
-
Price/SqFt
$345
HOA
-
Association
No
School District
-
Elementary School
Cherokee
-
Middle School
Highland
-
High School
Highland
Property Features
-
Stories
1
-
Sewer
Septic Tank
-
Water Source
Public
Schedule a Showing
Showing scheduled successfully.
Mortgage calculator
Estimate your monthly mortgage payment, including the principal and interest, property taxes, and HOA. Adjust the values to generate a more accurate rate.
Your payment
Principal and Interest:
$
Property taxes:
$
HOA fees:
$
Total loan payment:
$
Total interest amount:
$
Location
County
Sharp
Elementary School
Cherokee
Middle School
Highland
High School
Highland
Listing Courtesy of Jason Rhodes , King-Rhodes & Associates, Inc.
RealHub Information is provided exclusively for consumers' personal, non-commercial use, and it may not be used for any purpose other than to identify prospective properties consumers may be interested in purchasing. All information deemed reliable but not guaranteed and should be independently verified. All properties are subject to prior sale, change or withdrawal. RealHub website owner shall not be responsible for any typographical errors, misinformation, misprints and shall be held totally harmless.

Branch Broker
DebbieNeal
Call Debbie today to schedule a private showing.

* Listings on this website come from the FMLS IDX Compilation and may be held by brokerage firms other than the owner of this website. The listing brokerage is identified in any listing details. Information is deemed reliable but is not guaranteed. If you believe any FMLS listing contains material that infringes your copyrighted work please click here to review our DMCA policy and learn how to submit a takedown request.© 2024 FMLS.
